庫底卸料裝置
.jpg)
一、概述
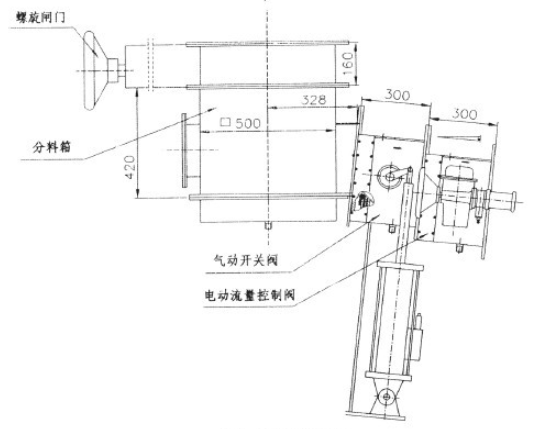
庫底卸料裝置由庫底螺旋閥、庫底分料箱、氣動開關閥、電動流量控制閥及卸料溜子組成(見圖一),用于水泥生料粉或水泥庫底卸料。庫底卸料裝置能自動調節卸料流量且均勻,其結構合理,操作維護簡單方便,可設三個下料口,用戶也可選用庫側卸料裝置(見圖二)。
本廠卸料裝置的氣動開關閥、電動流量調節閥是采用德國技術制造,閥芯、殼體采用16Mn鋼制作,閥芯表面鍍鉻,厚度10μm,以增加其耐磨性能,閥芯的密封采用優質整體羊毛氈密封,密封盒的松緊可在外部調節,更換時可在無須拆卸閥體的情況下從雙側抽出,閥芯開口、殼體部件下料均采用激光切割、機床加工的方式制作,充分保證設備裝配的高精密度。
本廠卸料裝置的氣動開關閥、電動流量調節閥是采用德國技術制造,閥芯、殼體采用16Mn鋼制作,閥芯表面鍍鉻,厚度10μm,以增加其耐磨性能,閥芯的密封采用優質整體羊毛氈密封,密封盒的松緊可在外部調節,更換時可在無須拆卸閥體的情況下從雙側抽出,閥芯開口、殼體部件下料均采用激光切割、機床加工的方式制作,充分保證設備裝配的高精密度。

二、進、出口法蘭及外形尺寸
.jpg)

三、技術參數表
.jpg)